0
  • Acheter Du neuf
  • Louer
Dans un rayon de
Budget
Mini
Maxi

    Faites estimer votre bien par un professionnel

    Estimer votre bien
    3 Pièce(s)
    2 Chambre(s)

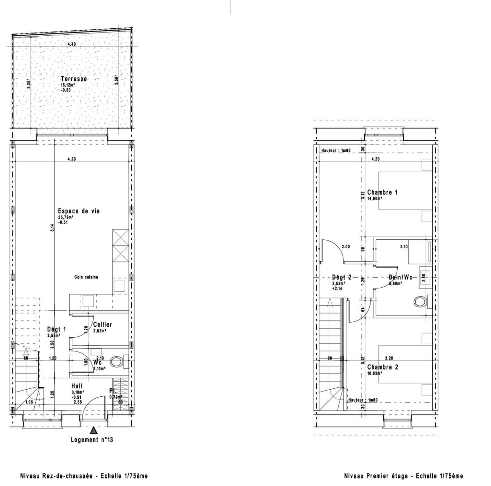
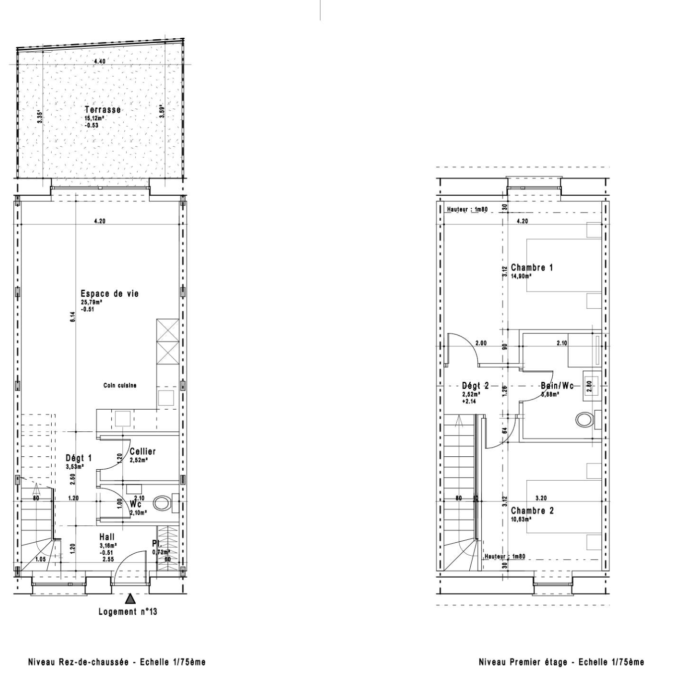
    Appartement F3 duplex neuf avec entrée indépendante – Amnéville

    Amnéville (57360)
    Réf : DODU10000059

    Situé sur un axe stratégique de la commune d’Amnéville, cet appartement F3 en duplex séduit par son entrée indépendante, offrant une vraie sensation de maison au sein d’une copropriété sécurisée.

    Il se compose d’une belle pièce de vie, de deux chambres, d’une salle d’eau moderne et d’une cuisine équipée. L’agencement en duplex apporte volume, intimité et confort de vie.

    Deux places de parking privative complètent ce bien.

    La livraison est prévue pour début 2027.

    Idéal pour :

    • Résidence principale, pour ceux qui veulent de l’indépendance

    • Famille ou couple, recherchant espace et confort

    • Investisseur, produit différenciant et recherché


    Caractéristiques principales :

    • Typologie : F3 duplex

    • Entrée : Indépendante

    • Rénovation : Réhabilitation complète à neuf

    • Cuisine : Équipée

    • Salle d’eau : Neuve

    • Stationnement : 1 place privative

    • Copropriété : Sécurisée

    • Livraison prévisionnelle : Début 2027


    Exclusivité De Charles Immobilier


    Ce bien vous intéresse ?
    Fieldset par défaut
    Fieldset par défaut
    Validation

    * Champs obligatoires

    Contacter l'agence
    Validation
    Les informations recueillies sur ce formulaire sont enregistrées dans un fichier informatisé par La Boite Immo agissant comme Sous-traitant du traitement pour la gestion de la clientèle/prospects de l'Agence / du Réseau qui reste Responsable du Traitement de vos Données personnelles. La base légale du traitement repose sur l'intérêt légitime de l'Agence / du Réseau. Elles sont conservées jusqu'à demande de suppression et sont destinées à l'Agence / au Réseau. Conformément à la loi « informatique et libertés », vous disposez des droits d’accès, de rectification, d’effacement, d’opposition, de limitation et de portabilité de vos données. Vous pouvez retirer votre consentement à tout moment en contactant directement l’Agence / Le Réseau. Consultez le site https://cnil.fr/fr pour plus d’informations sur vos droits. Si vous estimez, après avoir contacté l'Agence / le Réseau, que vos droits « Informatique et Libertés » ne sont pas respectés, vous pouvez adresser une réclamation à la CNIL. Nous vous informons de l’existence de la liste d'opposition au démarchage téléphonique « Bloctel », sur laquelle vous pouvez vous inscrire ici : https://www.bloctel.gouv.fr Dans le cadre de la protection des Données personnelles, nous vous invitons à ne pas inscrire de Données sensibles dans le champ de saisie libre.
    Ce site est protégé par reCAPTCHA, les Politiques de Confidentialité et les Conditions d'Utilisation de Google s'appliquent.

    En Bref

    Code postal 57360
    Surface habitable (m²) 71,56 m²
    Nombre de chambre(s) 2
    Nombre de pièces 3
    Nombre de niveaux 1
    Ascenseur NON
    Nb de salle d'eau 1
    Cuisine Américaine
    Type de cuisine Equipée
    Mode de chauffage Autre
    Type de chauffage Autre
    Format de chauffage Individuel
    Balcon NON
    Terrasse OUI
    Murs mitoyens 1
    Cave NON
    Nombre de parking 2
    Année de construction 2026

    Infos financières

    Prix de vente honoraires TTC inclus 245 900 €

    Energie

    Energie
    DPE
    GES