0
  • Acheter Du neuf
  • Louer
Dans un rayon de
Budget
Mini
Maxi

    Faites estimer votre bien par un professionnel

    Estimer votre bien
    2 Pièce(s)
    1 Chambre(s)

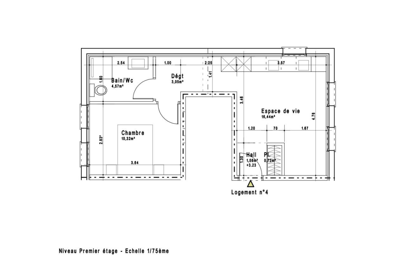
    Appartement F2 neuf avec parking – Amnéville axe majeur

    Amnéville (57360)
    Réf : DOAP10000052

    Situé sur un axe principal de la commune d’Amnéville, cet appartement F2 fait partie d’un ensemble immobilier entièrement réhabilité à neuf, au sein d’une copropriété moderne et sécurisée.

    L’appartement se compose d’une pièce de vie lumineuse, d’une chambre confortable, d’une salle d’eau moderne ainsi que d’une cuisine équipée, offrant un confort immédiat

    Une place de parking privative complète ce bien

    La livraison est prévue pour début 2027, permettant d’anticiper un projet immobilier neuf dans un secteur recherché.

    Idéal pour :

    - Investisseur, forte demande locative sur le secteur

    - Primo-accédant, première acquisition sécurisée et fonctionnelle

    - Pied-à-terre, sur une commune dynamique


    Caractéristiques principales :

    - Typologie : F2

    - Rénovation : Réhabilitation complète à neuf

    - Cuisine : Équipée

    - Salle d’eau : Neuve

    - Stationnement : 1 place privative

    - Copropriété : Sécurisée (clôture et portail)

    - Livraison prévisionnelle : Début 2027


    Exclusivité De Charles Immobilier

    Ce bien vous intéresse ?
    Fieldset par défaut
    Fieldset par défaut
    Validation

    * Champs obligatoires

    Contacter l'agence
    Validation
    Les informations recueillies sur ce formulaire sont enregistrées dans un fichier informatisé par La Boite Immo agissant comme Sous-traitant du traitement pour la gestion de la clientèle/prospects de l'Agence / du Réseau qui reste Responsable du Traitement de vos Données personnelles. La base légale du traitement repose sur l'intérêt légitime de l'Agence / du Réseau. Elles sont conservées jusqu'à demande de suppression et sont destinées à l'Agence / au Réseau. Conformément à la loi « informatique et libertés », vous disposez des droits d’accès, de rectification, d’effacement, d’opposition, de limitation et de portabilité de vos données. Vous pouvez retirer votre consentement à tout moment en contactant directement l’Agence / Le Réseau. Consultez le site https://cnil.fr/fr pour plus d’informations sur vos droits. Si vous estimez, après avoir contacté l'Agence / le Réseau, que vos droits « Informatique et Libertés » ne sont pas respectés, vous pouvez adresser une réclamation à la CNIL. Nous vous informons de l’existence de la liste d'opposition au démarchage téléphonique « Bloctel », sur laquelle vous pouvez vous inscrire ici : https://www.bloctel.gouv.fr Dans le cadre de la protection des Données personnelles, nous vous invitons à ne pas inscrire de Données sensibles dans le champ de saisie libre.
    Ce site est protégé par reCAPTCHA, les Politiques de Confidentialité et les Conditions d'Utilisation de Google s'appliquent.

    En Bref

    Code postal 57360
    Surface habitable (m²) 37 m²
    Surface loi Carrez (m²) 36,66 m²
    Nombre de chambre(s) 1
    Nombre de pièces 2
    Etage 1
    Ascenseur NON
    Nb de salle d'eau 1
    Cuisine Américaine
    Type de cuisine Equipée
    Mode de chauffage Autre
    Type de chauffage Autre
    Format de chauffage Individuel
    Interphone OUI
    Visiophone OUI
    Balcon NON
    Terrasse NON
    Cave NON
    Année de construction 2026

    Infos financières

    Prix de vente honoraires TTC inclus 127 900 €

    Energie

    Energie
    DPE
    GES